Caroline THIBAULT - Architecte D.P.L.G. près de Rouen

L'efficience architecturale & énergétique - Forges les Eaux

CAROLINE THIBAULT

ARCHITECTE DPLG

  • Accueil
  • Actualités
  • Vous êtes un professionnel
    • Maîtrise d'oeuvre
    • Accessibilité / Sécurité
    • Relevé de bâtiment
    • Relevé de terrain
    • Rénovation thermique
    • La 3D dans l'architecture
  • Vous êtes un particulier
    • Extension
    • Rénovation
    • Neuf
    • Surélévation
  • Contact

Comment intervenir sur du bâti existant : par une mission de maîtrise d'oeuvre

Lorsque vous souhaitez faire évoluer un bâtiment existant

Vous possédez des bâtiments que vous souhaitez modifier, pour diverses raisons, qu'elles soient techniques ou organisationnelles :
- modification d'affectation : par exemple création de logements locatifs dans un ancien presbytère
- extension pour créer de la surface et ré-organiser les locaux existants : classe supplémentaire pour l'école, ou création d'une cuisine et de sanitaires pour la salle des fêtes, ré-organisation en rez-de-chaussée uniquement des locaux de la mairie
- rénovation d'un bâtiment: peu de travaux ont été faits et il faut tout remettre à niveau, depuis les installations électriques et chauffage­plomberie, en passant par l'isolation et les menuiseries extérieures, ou encore la conformité à diverses réglementations, que ce soit l'accessibilité pour les personnes porteuses de handicap ou la sécurité incendie
Vue 3D, Bouvaincourt-sur-Bresle, avec rampes extérieures créées, ainsi que l'extension avec ascenseur et couloir, et escalier extérieur d'issue de secours
Nous proposons une mission complète de maîtrise d'oeuvre (selon loi MOP) :
- diagnostic de l'existant : architectural, structurel, installations techniques
- relevé des bâtiments existants, par lasergrammétrie et photogrammétrie
- création des fonds de plans
- propositions de travaux traduites en plans, descriptif, coût des travaux
- élaboration de la demande d'autorisation d'urbanisme si nécessaire
- étude thermique montrant le gain obtenu sur les consommations pour l'existant ou étude thermique réglementaire phase permis de construire en cas de construction neuve
- nouveau dimensionnement de l'installation de chauffage et ventilation
- dimensionnement de la structure si intervention lourde sur l'existant et/ou création d'une extension
- constitution du dossier de consultation des entreprises
- analyse des offres des entreprises
- suivi et gestion du chantier jusqu'à la réception des travaux (qualité, coût, délai), avec la mission OPC (organisation pilotage coordination)
Planning avec phasage en fonction du calendrier scolaire
Pour cela nous vous proposons toutes les compétences nécessaires :
- conception architecturale
- économie de projet
- partenariat avec un bureau d'étude chauffage-ventilation et thermique
- partenariat avec un bureau d'étude électricité
Plan BET pour ventilation double flux
Plan BET pour structure

NOS SPÉCIFICITÉS

► interlocuteur unique sur un projet, depuis la première prise de contact et jusqu'à la fin du chantier
► expérience des projets à destination des collectivités locales de petite taille
► expérience des projets en site occupé : gestion du planning par phase, prise en compte des usagers pour la continuité du service, réduction des nuisances par adaptation des horaires par exemple, ou planning avec tâches dérangeantes en dehors de la présence des usagers
► échange avec les usagers : présentation publique du projet, intervention dans les classes si le projet concerne une école

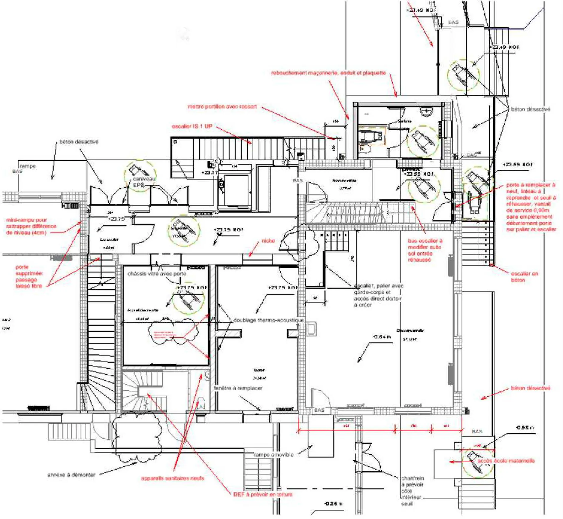
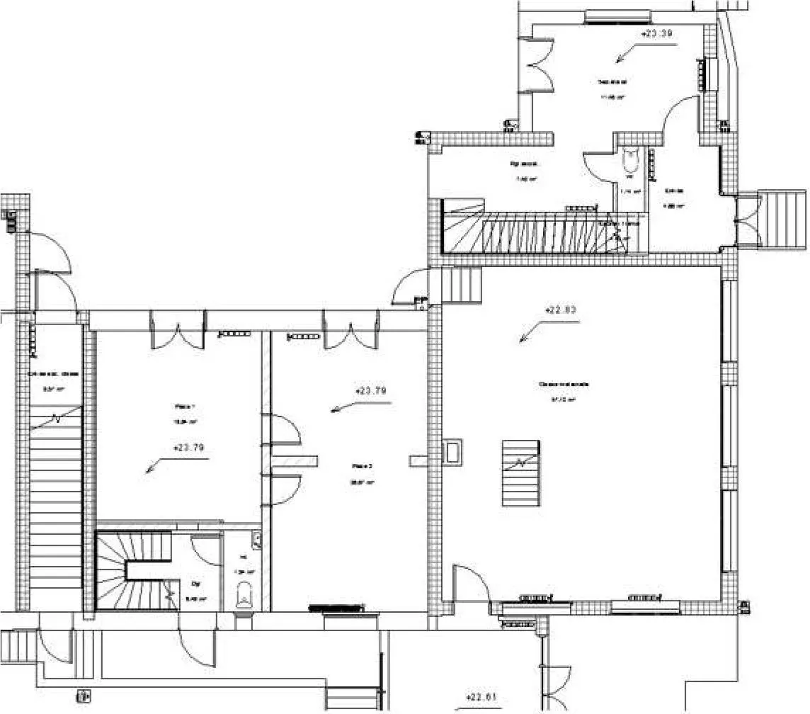
Rénovation en site occupé de la mairie, école maternelle et élémentaire de Bouvaincourt-sur-Bresle (80), avec déménagement de certains locaux

• ré-organisation de certains locaux (secréatariat, dortoir, sanitaires, escalier accès étage)
• mise en conformité pour l'accessibilité des personnes handicapées et pour la sécurité incendie
• avec construction de rampes d'accès, d'un ascenseur
• travaux d'isolation et remplacement des menuiseries extérieures
• chaufferie refaite à neuf, ainsi que les réseaux de chauffage
• ventilation simple flux créée
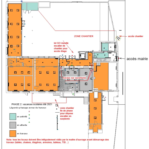
Pendant le chantier, l'école a continué à fonctionner : les mercredis et vacances scolaires ont été utilisés pour les travaux dans les classes et les travaux les plus bruyants, phasage élaboréen conséquence (voir ci-dessous)
Avant travaux
après travaux

Transformation de locaux SNCF en pôle culturel (avec médiatèque communale et salle associative) à Serqueux (76)

• changement de destination au sens du code de l'urbanisme
• création d'un niveau supplémentaire en mezzanine par la création d'un plancher métallique, dans le volume existant, avec intervention sur les fondations
• isolation et menuiseries extérieures refaites à neuf
• installations techniques refaites à neuf
• cloisonnement et finitions refaits à neuf
• prise en compte des demandes de la SNCF pour la sécurité incendie puisque cet équipement se situe dans la gare et ne fait qu'un en terme de fonctionnement avec le hall voyageurs
• programme avec usages multiples : agence postale communale en plus de l'activité médiathèque et gestion du hall voyageurs
Logo Caroline Thibault Architecte
Mentions légales
Politique de confidentialité
N° de SIRET : 538 765 439 00012
Site réalisé par SOS PC | Aurélien Acoulon
Site réalisé par SOS PC | Aurélien Acoulon